售后服务热线 139-2483-6766

当前位置:首页 > 产品中心 > 双梁起重机

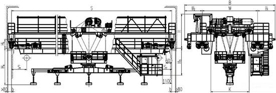
下旋转伸缩挂梁电磁桥式起重机

产品分类:双梁起重机
铸造/冶金吊钩桥式起重机是吊运熔融金属/金属铸造的起重机,其主要由箱形桥架、起重小车、大车运行机构和电气控制系统组成。取物装置是专用吊钩。主梁上面铺设有轨道,供起重小车沿主梁方向作横向移动。主梁与箱型端梁焊接而成,端梁中间布置有接头,螺栓连接,供桥架分...
13924836766

产品详情

  铸造/冶金吊钩桥式起重机是吊运熔融金属/金属铸造的起重机,其主要由箱形桥架、起重小车、大车运行机构和电气控制系统组成。取物装置是专用吊钩。

  主梁上面铺设有轨道,供起重小车沿主梁方向作横向移动。主梁与箱型端梁焊接而成,端梁中间布置有接头,螺栓连接,供桥架分拆运输。走台用来

  放置大车运行机构、电气设备及作检修用。

  操作方式设有地面手柄、无线遥控和司机室三种操作形式。驾驶室有开式、闭式两种,内有可调式座椅,底板铺设绝缘垫,窗玻璃采用钢化玻璃,

  配有灭火器、电风扇,可根据用户要求配置冷暖空调、讯响器、对讲机等物品。

  起重机可配挂马达抓斗、电磁吸盘等取物装置,满足吊运多种类型物料的需求。

  本起重机工作级别A6~A7,常用起重量为3~600t。适宜在环境温度-10℃~60℃,相对湿度不大于85%的工厂、等处作装卸吊运工作,禁止在易燃、易爆以及充满腐蚀性气体的环境中工作。

  电动吊钩桥式起重机是目前应用较为广泛的起重机械,其主要由箱形桥架、起重小车、大车运行机构和电气控制系统组成。取物装置是吊钩。

  主梁上面铺设有轨道,供起重小车沿主梁方向作横向移动。主梁与箱型端梁焊接而成,端梁中间布置有接头,螺栓连接,供桥架分拆运输。

  走台用来放置大车运行机构、电气设备及作检修用。

  操作方式设有地面手柄、无线遥控和司机室三种操作形式。驾驶室有开式、闭式两种,内有可调式座椅,底板铺设绝缘垫,窗玻璃采用钢化玻璃,

  配有灭火器、电风扇,可根据用户要求配置冷暖空调、讯响器、对讲机等物品。

  起重机可配挂马达抓斗、电磁吸盘等取物装置,满足吊运多种类型物料的需求。

  本起重机工作级别A3~A7,常用起重量为3~600t。适宜在环境温度-10℃~50℃,相对湿度不大于85%的工厂、仓库及货场等处作装卸吊运工作,禁止在易燃、易爆以及充满腐蚀性气体的环境中工作。

相关产品

更多>>
联系我们

公司地址:河南省长垣市起重产业集聚区

王经理:13924836766/15836107371

企业网址:www.dfqzw.com

关注我们 大方集团 产品中心 新闻中心 资质荣誉 应用行业 联系我们
产品中心 单梁起重机 双梁起重机 门式起重机 新型欧式起重机 防爆起重机系列 电动葫芦系列 抓斗起重机 悬臂吊起重机 KBK轻型起重机 冶金起重机

手机扫一扫

Copyright © 2021 河南省大方重型机器有限公司  免责声明   备案号:豫ICP备2022006834号