

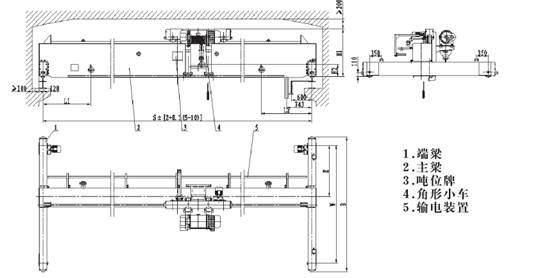
LDP型电动单梁起重机属于超低净空轻小型起重机,电动葫芦位于主梁一侧,增加了吊钩的服务空间,可以降低厂房高度和造价。该产品因具有小车轮距大、运行平稳、结构紧凑、刚性好、操作灵敏、噪音低、相当、造型美观等优点,广泛应用于工作环境温度在-25℃~+40℃,车间厂房净空高度又较低的场所。
LDP型电动单梁起重机是按GB/T 3811-2008、JB/T 1306-2008标准设计制造的,与CD1、MD1电动葫芦配套使用的轻型起重设备。其额定载荷3t~10t,跨度7.5m~22.5m,工作级别 A3、A4,起升高度6~12m,操作方式主要是地面操纵方式(地操、遥控操作、地+遥操作)。如果有跨度和起升高度超出样本中所列的范围,我们还可以根 据用户需求进行非标设计
Copyright © 2021 河南省大方重型机器有限公司 免责声明 备案号:豫ICP备2022006834号