

欧式单梁起重机
产品型号: 欧式单梁
起升吨位: 0.5-20吨
起升高度: 6、9、12米
适用跨度: 7.5-28.5米
工作级别: A3-A5
欧式电动单梁起重机采用独特的设计理念,具有尺寸小,重量轻,轮压小的特点。与传统起重机相比,吊钩至墙面的极限距离*小,净空高度*低,更能贴近前面作业,起升高度更高,实际增加了现有厂房的有效工作空间。由于起重机具有重量轻,轮压小的特点,新厂房空间可以设计的更小,功能更齐全.
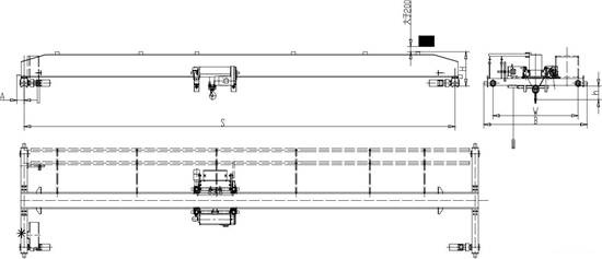
S—起重机跨度
H—起重机运行轨道顶部距起重机*高点的距离
h—起重机吊钩升到*高点时距起重机运行轨道顶部的距离
A—大车轨道中心到端梁外侧的距离
W—大车端梁轮距
B—大车端梁(含缓冲器)的长度
注:
1、大车运行标准速度为2-20m/min(变频调速);小车运行标准速度为2-20m/min(变频调速);
2、除了标准起升速度外,还有多种速度可供选择,也可选用变频控制起升。
3、控制方式有多种:地操操作、遥控器操作及两者的组合。
4、表格中数据仅供参考,如有变更,恕不另作通知。
Copyright © 2021 河南省大方重型机器有限公司 免责声明 备案号:豫ICP备2022006834号